ΑΡΧΙΚΗ ΣΕΛΙΔΑ
ΠΡΟΦΙΛ
ΕΡΓΑ
ΔΗΜΟΣΙΕΥΣΕΙΣ
ΕΠΙΚΟΙΝΩΝΙΑ
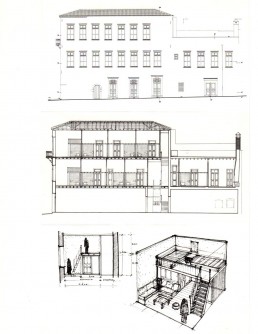
Αποκατάσταση διατηρητέου συγκροτήματος, Ρέθυμνο
Έτος: 1988
Εργοδότης: Υπουργείο Πολιτισμού
Αποκατάσταση παραδοσιακής κατοικίας, Άνδρος
::
Οργανωτικό σχέδιο λιμένα Θεσσαλονίκης
Privacy Preference Center
Privacy Preferences