ΑΡΧΙΚΗ ΣΕΛΙΔΑ
ΠΡΟΦΙΛ
ΕΡΓΑ
ΔΗΜΟΣΙΕΥΣΕΙΣ
ΕΠΙΚΟΙΝΩΝΙΑ
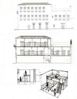
Ξενώνας σε μεσαιωνικό κτίριο, Ρέθυμνο
Έτος: 1988
Εργοδότης: Υπουργείο Πολιτισμού
Διαμερίσματα σε παραδοσιακή κατοικία, Ρέθυμνο
::
Ανάπλαση Υπαίθριων χώρων, Αγία Παρασκευή, Αττική
Privacy Preference Center
Privacy Preferences