ΑΡΧΙΚΗ ΣΕΛΙΔΑ
ΠΡΟΦΙΛ
ΕΡΓΑ
ΔΗΜΟΣΙΕΥΣΕΙΣ
ΕΠΙΚΟΙΝΩΝΙΑ
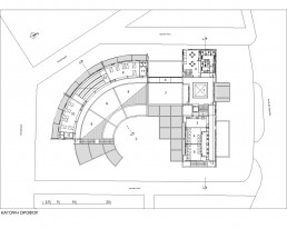
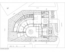
Βρεφονηπιακός σταθμός στις Αχαρνές Αττικής
Έτος: 2007
Εργοδότης: Οργανισμός Εργατικής Εστίας
Συνεργάτης Αρχιτέκτονας: Γ.Βεντούρης
Κατοικία στη Βραυρώνα
::
Κτιριακές εγκαταστάσεις Πανεπιστήμιου Κύπρου
Privacy Preference Center
Privacy Preferences